+7 (3452) 60-05-05

Офис продаж в г. Тюмень

logo

Дом из бруса «‎Лесной»

Проект «Лесной» - уютный одноэтажный дом из клеёного бруса.

О проекте

Проект «Лесной» - уютный одноэтажный дом из клеёного бруса.

Архитектура дома впечатляет: выразительный фасад с панорамными окнами, натуральная древесина и аккуратная кровля образуют гармоничный, тёплый образ.

Внутреннее пространство продумано с максимальной функциональностью. Центр дома - просторная кухня-гостиная, объединяющая зону приготовления еды и отдыха. Большие окна наполняют помещение светом и открывают вид на сад.

Две комнаты оптимальной площади подойдут для спален или кабинета - в зависимости от образа жизни семьи. В доме также предусмотрены:


Характеристики

Этажность
1 этаж
Площадь
84 м²
Размеры
9,5 x 10,6 м
Фундамент
Свайный
Материал стен
Клееный брус 160 х 185 мм
Кровля
Металлочерепица
Толщина утепления пола
200 мм
Толщина утепления кровли
200 мм
Число комнат
2
Кухня с гостиной
Объединенные
Число санузлов
1
Веранда / терраса
Нет

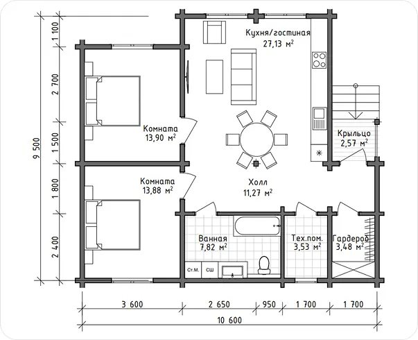
Планировки

Планировки
#
#

Оплата и сроки строительства

Кредит

Учтем все ваши пожелания. Дадим смету на разработанный проект. Можно не приезжать в офис – всё сделаем дистанционно.

Оставить заявку

Этапная оплата

Четырьмя траншами. Оплата стенового комплекта, фундамента, монтажа коробки дома и кровли.

Изготовление стенового комплекта

Срок зависит от выбранного материала и загрузки производства. В среднем это полтора месяца.

Рассрочка от компании

Удобная индивидуальная рассрочка от компании. Условия уточняйте у менеджеров.

Монтаж домокомплекта

Зависит от величины и сложности объекта. Обычно не превышает 3-4 недель.

Кредит

Учтем все ваши пожелания. Дадим смету на разработанный проект. Можно не приезжать в офис – всё сделаем дистанционно.

Оставить заявку

Этапная оплата

Четырьмя траншами. Оплата стенового комплекта, фундамента, монтажа коробки дома и кровли.

Рассрочка от компании

Удобная индивидуальная рассрочка от компании. Условия уточняйте у менеджеров.

Изготовление стенового комплекта

Срок зависит от выбранного материала и загрузки производства. В среднем это полтора месяца.

Монтаж домокомплекта

Зависит от величины и сложности объекта. Обычно не превышает 3-4 недель.

Из чего мы строим

«Конда» специализируется на строительстве из дерева. Мы используем материалы собственного производства, чтоб быть полностью уверенными в качестве и надежности готового дома.

Консультация инженера

С удовольствием расскажем об особенностях выбора материалов.

Специалист

Максим Лютоев

Ведуший специалист

Профилированный брус

Профилированный брус

Демократичные цены, быстрая сборка

Оцилиндрованное бревно

Оцилиндрованное бревно

Традиционные формы, неповторимый уют

Клееный брус

Клееный брус

Почти без усадки, не деформируется, не растрескивается

Похожие проекты

Дом из бревна «‎Ярково»

4.7

Дом из бревна

65 м²

Дом из бруса «‎Кашино»

4.8

Дом из бруса

76 м²

Дом из бруса «‎Совушка»

4.9

Дом из бруса

55 м²

Дом из бруса «‎Тавда»

4.9

Дом из бруса

60 м²

Дом из бруса «‎Ольховое»

4.8

Дом из бревна

90 м²

Дом из бруса «‎Восток»

4.9

Дом из бруса

95 м²

Дом из бруса «‎Лаймы»

5

Дом-баня из бруса

92 м²

Дом из бруса «‎Еловый»

4.6

Дом из бруса

75 м²

Дом из бруса «‎Исеть»

4.8

Дом из бруса

111 м²

Почему с нами удобно?

Фиксируем стоимость и сроки

Мы составляем честную смету, которая не растет в процессе работы, и прикрепляем ее к договору.

Демократичные цены

«Конда» — производитель домокомплектов, мы гарантируем честные цены без переплат.

Гарантия

Срок гарантии на домокомплект составляет 5 лет и фиксируется в договоре.

Строим под ключ

Мы готовы выполнить не только поставку домокомплекта, но и его монтаж.

Построенные нами дома

дом
СПА-комплекс из дерева в Тюменской области
дом
дом
Пергола
дом
дом

97м²

Лаймы
дом
дом
Звонница для колоколов
дом
дом
Беседка
дом
дом
Современная баня для строителя
дом

264м²

Охотничья усадьба
дом

Часто задаваемые вопросы

Можно ли начать финишную отделку бани сразу после строительства?

База знаний

#
12 апреля 2024
Что влияет на качество клееного бруса
Клееный брус — один из самых надежных материалов современного домостроения. Его качество напрямую определяет, насколько дом будет прочным, тёплым и безопасным для жизни. Именно поэтому при выборе поставщика важно внимательно оценивать не только цену, но и характеристики самого материала.
#
12 апреля 2024
ТОП-5 пород древесины для строительства
Каждая порода древесины в строительстве играет свою роль. Одна идеально подходит для несущих конструкций, другие — для парных и отделки, третьи — для фасадов и террас. Разберёмся, чем хороши самые востребованные материалы: сосна, ель, лиственница, осина и липа.
#
12 апреля 2024
Какой фундамент выбрать для каркасного дома
Строительство любого дома начинается с основания. От того, насколько правильно выбран и построен фундамент, зависит долговечность и комфорт будущего жилья. В случае с каркасными домами этот этап тоже критичен: даже лёгкие конструкции требуют точного расчёта и правильного монтажа, чтобы здание не просело и не потеряло энергоэффективность.
В этой статье мы собрали ключевые факты, которые помогут разобраться в особенностях выбора фундамента для каркасника.
#
12 апреля 2024
5 принципов надежного каркасного дома
Как понять, что каркасный дом действительно построен качественно и прослужит десятилетиями? Инженеры и строители компании «Конда» выделили шесть ключевых правил, на которых держится долговечность и комфорт любого современного каркасного жилья.